首页
后勤概况
中心介绍
领导机构
综合管理科
工程规划科
项目管理科
物资管理科
饮食管理科
物业管理科
学生公寓管理科
维修管理科
通知公告
工作动态
服务指南
常见问题
下载中心
政策法规
党建之窗
工作流程
项目前期管理
项目实施管理
修缮工程管理
一键报修
能源公示
学校主页
项目概况
在建项目
竣工项目
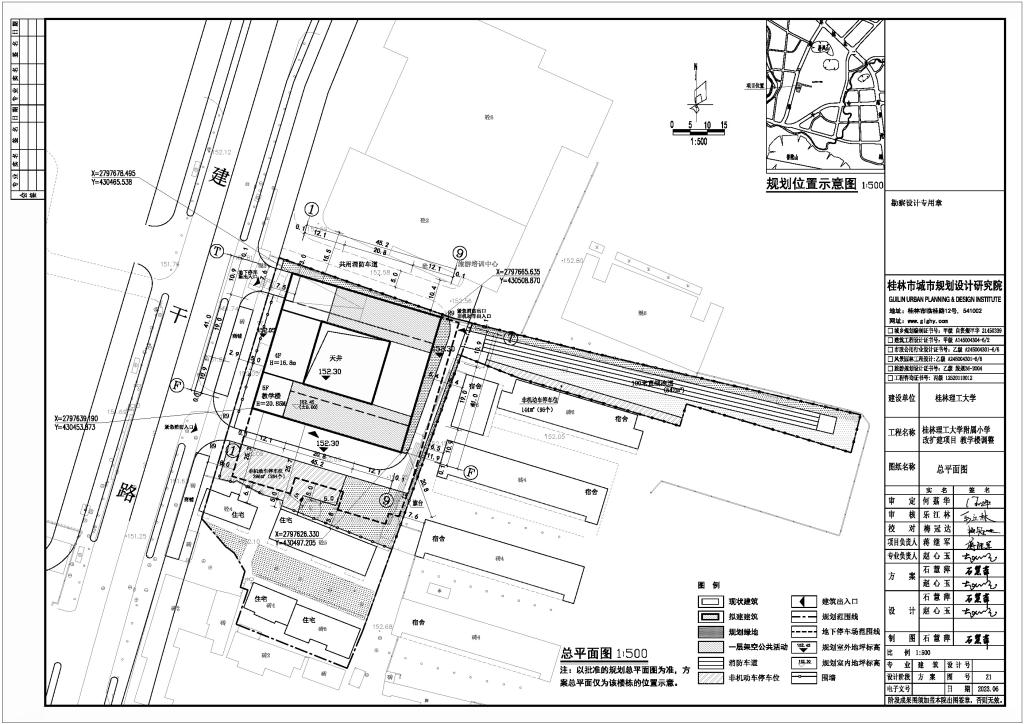
附属小学改扩建
2026年01月14日
(浏览量:
)
规划总平面
外立面
鸟瞰图
外立面
已是首条
下一条:雁山校区24#智慧中心
【
关闭窗口
】